三光商事有限会社TOP
>
(戸建(売買))地域から探す
>
米子市
>
両三柳中古
両三柳中古
両三柳中古
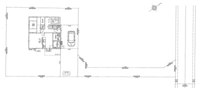
※写真や図と実際の現状とが異なる場合は現状を優先させていただきます
※ご覧になりたい写真をクリックすると
拡大されて表示されます。
情報の見方
両三柳中古
の物件概要
【中古一戸建】
| 所在地 |
鳥取県米子市両三柳4603-7 |
| 交通 |
|
| 価格 |
1,850万円~2,780万円 |
築年月(築年数) |
1966年 4月 ( 築59年 )
|
| 建物面積/坪数 |
98.22㎡~100.67㎡/29.71坪~30.45坪 |
土地面積/坪数 |
319.00㎡~344.61㎡/96.49坪~104.24坪 |
| 種別/構造 |
中古一戸建 / 木造 |
地目 |
宅地 |
| 取扱会社 |
- 三光商事有限会社
- 鳥取県米子市角盤町3丁目174
- TEL:0859-32-2881
- 鳥取県知事 (16) 第64号
- 社団法人鳥取県宅地建物取引業協会、社団法人全国宅地建物取引業保証協会
|
※地図上に表示される物件の位置は付近住所に所在することを表すものであり、実際の物件所在地とは異なる場合がございます。
両三柳中古の販売物件情報
| 価格 |
間取り |
建ぺい率/容積率 |
建物面積 |
土地面積 |
詳細 |
検討リスト |
| 1,850万円 |
3LDK
|
70%/
400% |
98.22㎡ |
344.61㎡ |
詳細を見る
|
追加する |
| 2,780万円 |
4LDK
|
60%/
200% |
100.67㎡ |
319.00㎡ |
詳細を見る
|
追加する |
両三柳中古へのお問い合わせ
- ▼ご希望の物件をお探しします

おすすめ物件
観音寺中古
鳥取県米子市観音寺新町2丁目
山陰本線「東山公園」駅 徒歩18分
築42年


- 三光商事有限会社
- 〒683-0812
- 鳥取県米子市角盤町3丁目174
- TEL/0859-32-2881
- FAX/0859-22-0507
- 鳥取県知事 (16) 第64号